又到了刺激大家神经的时间了~:)
话说最近在卡城西北highwood地区,悄无声息的竖起了两栋豪宅!!(下图,highwood所在地区示意)
这里原本是大家心目中的西北,但是自从2016年卡尔加里房产局分布新的划区以后,highwood就变成了卡城的Inner City了!!
社区旁边就是卡城绿肺:Nose Hill,这也使得highwood成为了卡尔加里隐藏的好社区之一。
但是,有一个问题就是,highwood建成于1954年,社区小,人口少,所以大部分在售的房子都是这样(下图)
看到上面这房子没有住的欲望呀,地段这么好,富人们想来怎么办?
Infill啊,中文就是推倒重建,现在卡尔加里城市核心区域非常流行这种建房方式。它们的特点就是设计现代,房型高大,地点靠近市中心
今天,我们给大家介绍的就是位于highwood社区的infill豪宅呀!!
这栋房屋设计现代的内城豪宅面积多达4000平方尺,房子正在建设中,据说即将完工了,还没在MLS挂出来~~
现在还等着未来的房主挑选各种装修材料呢,那么这房子到底张什么样呢?!
来来,看看开发商之前建好的豪宅样子(下图)
现代风的厨房,很有感觉(下图)
装饰豪华的卫生间(下图)
这么宽敞的衣帽间?真是太奢侈了!!(下图)
宽敞明亮的主卧,四扇超大落地窗是亮点(下图)
完全装修的地下室(下图)
地下室也非常明亮,果然是高标准豪宅(下图)
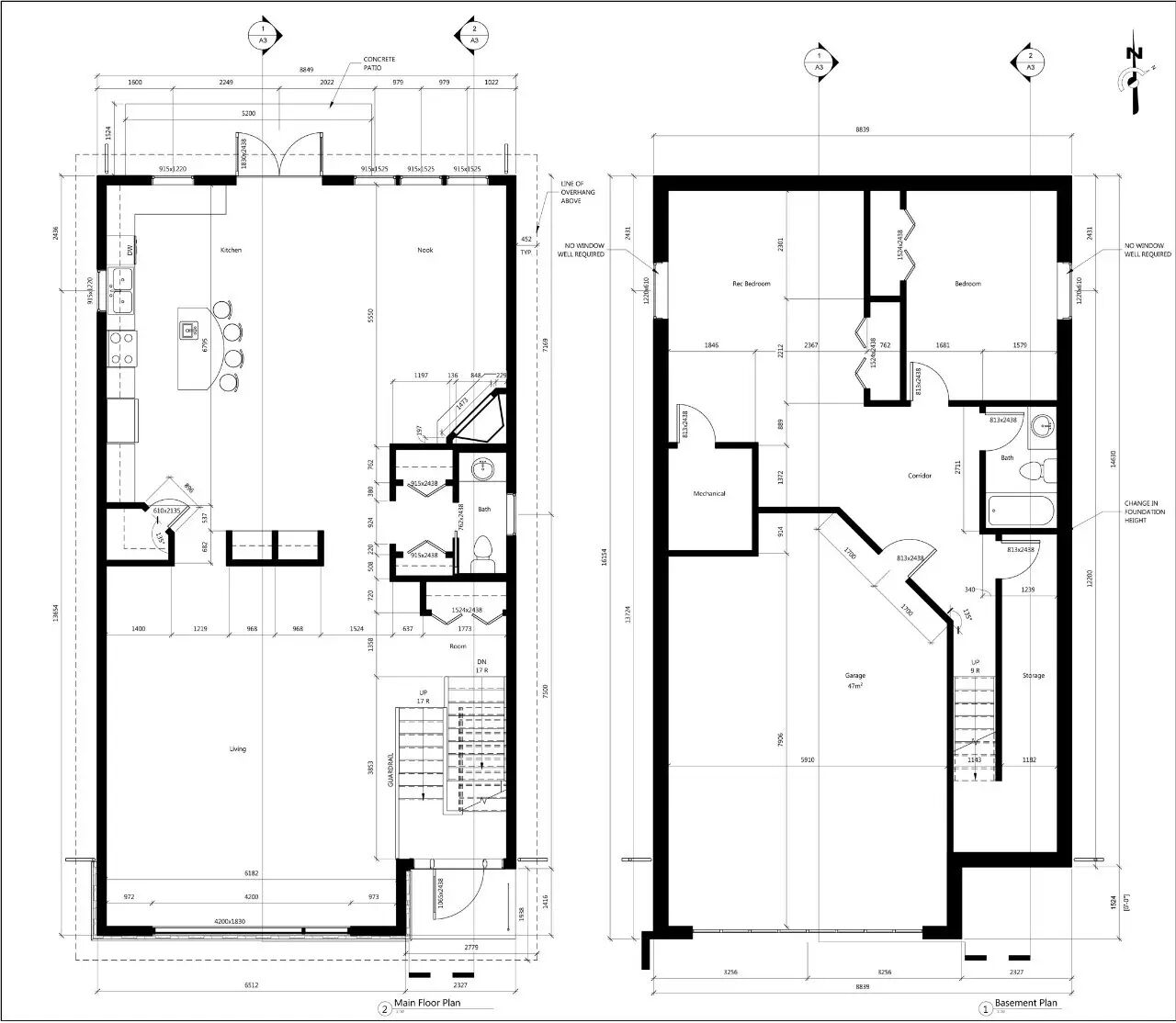
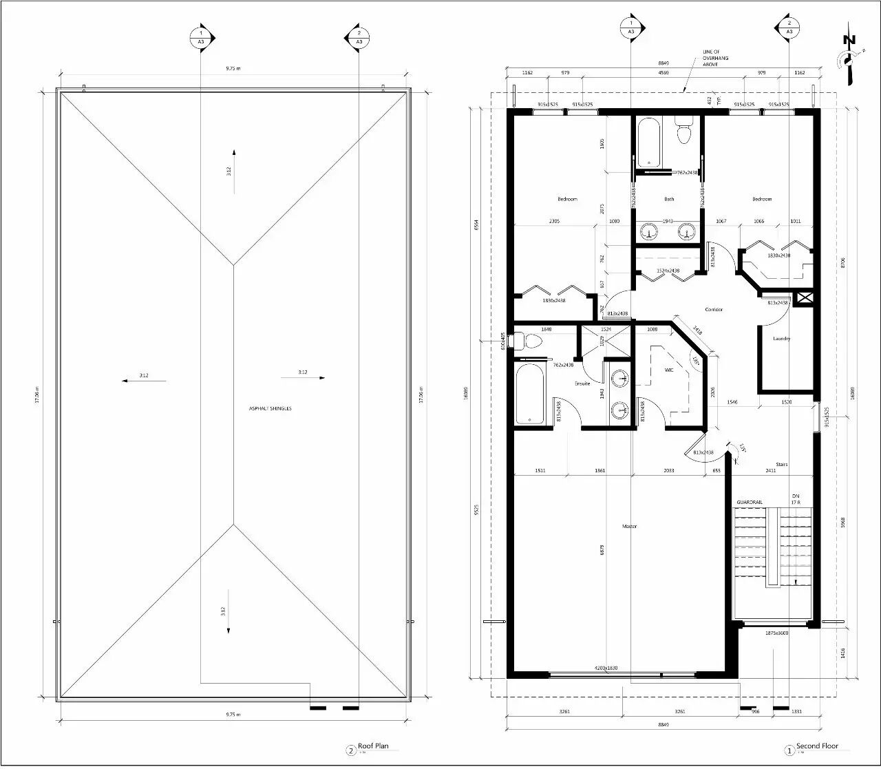
这套奢华室内独立屋的户型图,从设计图外观看,建筑高度很“可怕”呀!!
单击放大,看得懂的好好瞅瞅吧(下图)
来来,再来总结一下TA的诱人之处:
-
鹤立鸡群
这套全新豪宅旁边没有遮挡物,邻居房屋都比TA矮,犹如鹤立鸡群,采光非常好!!
-
交通方便
地理位置绝佳,离SAIT和16 Ave开车大约10分钟
-
完全独立屋豪宅
而大多数的inner city infills房子都是semi attached,但这个是完全独立屋豪宅
-
性价比超高!!
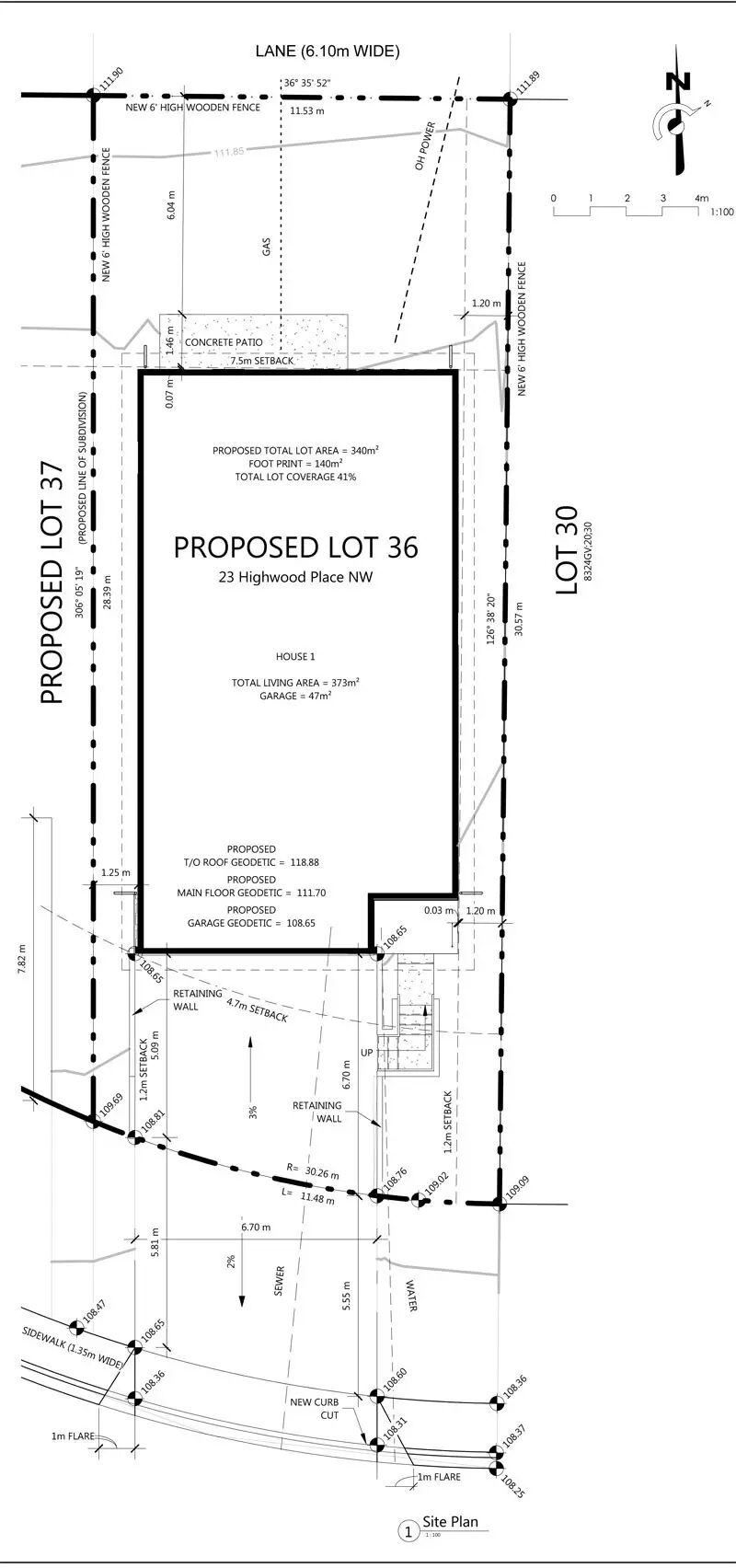
所在的highwood社区旁Cambrian Rosemont Pleasant都是infills热区,豪宅数量和价格都很高,基本上售价150万以上!!
这套还未上市的Inner City豪宅,叫价仅125万加币(对于壕来说),而且还包含GST,阿省一般新房都要单交GST,价格非常有吸引力。
需要提醒的是:这间全新豪宅10月份完工,目前买家可以自己选择室内装饰材料以及颜色搭配。TA现在犹如闺中待嫁的姑娘,尚未完全揭开面纱呢~
想亲眼去现场参观一下这栋神秘全新豪宅?联系方式在下边:
(欢迎客户咨询,也欢迎房产经纪围观~)
据说这位仁兄有很多性价比超高的独家房源,都没在MLS上公开上市呢,有兴趣可以联系一下他~~
微信公众号










